Rachel Carson Ecovillage promises to bring cohousing, a new way of living, to region
The first residents of a new cohousing community in McCandless are expected to begin moving into their homes early next year.
After five years of planning and preparation, the homes that will make up the Rachel Carson EcoVillage at Providence Heights were expected to quickly begin taking shape in November, as the panels of the highly energy efficient buildings were produced in Baltimore, project Manager Stefani Danes said.
The all-electric homes will be so heavily insulated that it’s expected to cost less than $20 per month year-round to heat and cool them, she said.
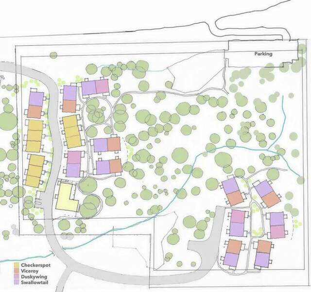
But while the buildings are “super insulated,” the community is designed to not isolate its residents. The 8-acre property off Cumberland Road near La Roche University will feature a two-story common house, which includes a kitchen and dining room where residents can enjoy meals together.
“The whole idea is for neighbors to know each other,” said Danes, who, with her husband, Doug Cooper, will be moving to the village from Pittsburgh’s Friendship neighborhood. “It’s very hard in the way that housing is built to know your neighbors before you choose your house.”
Cohousing “is a happier way to raise kids. It’s a safer way. We’re offering a choice that doesn’t exist here.”
After 30 years in California near San Diego, Pittsburgh native Paula Strasser, 71, is coming home for her retirement. She was among a group that toured the village construction site on Sunday, Oct. 26 — where a groundhog was noticed scurrying through the woods and a hawk was seen and heard soaring overhead.
It was the village, Strasser said, that brought her back to Pennsylvania.
“I knew about cohousing. I knew what cohousing was,” she said. “The Rachel Carson EcoVillage reached out from the computer screen, grabbed me by the throat and said, ‘You’re coming here.’ It felt right. It still feels right.”
Cohousing communities are collaborative developments that combine private homes, typically 20 to 40, with common facilities. Common property is managed and maintained by community members.
Started in Denmark in the 1970s, the first cohousing community in the U.S., Muir Commons, was completed in 1991 in Davis, Calif. It has 26 private homes on about 3 acres around a central pedestrian pathway with a shared common house for meals and gatherings.
Since then, more than 180 cohousing communities have been established across the country, with 20 being built and more than 100 forming, Danes said.
Interest in cohousing is being driven by baby boomers who are downsizing and seeking community-oriented and environmentally-friendly lifestyles, as well as millennials looking for neighborhoods more conducive to raising children than isolating single-family homes.
While the Rachel Carson EcoVillage is billed as the first ecovillage in Southwestern Pennsylvania, there had been an earlier attempt, Borland Green, in Pittsburgh’s East Liberty neighborhood.
Begun with seven older row houses, Borland Green planned to create a small cohousing community by buying other property to co-own a commons building, but that never happened, Danes said. Some of those involved have moved away, while those remaining garden together.
“The Borland Green garden is essentially a community garden that neighbors can help cultivate,” she said. “But the idea of an intentional community never got off the ground because the group was too small and the property was not large enough to expand to include others. It’s very difficult to maintain a community with such limited volunteer efforts.”
The closest established and most well-known ecovillage to Pittsburgh is EcoVillage Ithaca in New York, which dates from 1994, Danes said.
Cohousing is centered on community and social connections more than ecological stewardship, but most practice living more sustainably and affordably by recycling, composting and avoiding single-use plastics, Danes said.
They have named the village after Springdale native and environmentalist Rachel Carson because they are inspired by her.
“Rachel Carson has a great legacy here in Western Pennsylvania,” Danes said. “We’re honored to be carrying on her legacy of living with nature.”
The village’s 35 units range from studios to four bedrooms that are sold at-cost from $250,000 to mid-$600,000. Of those, only seven four-bedroom units remain available to buy, but co-buying and some rental opportunities will be available, Danes said.
“Anyone who rents a unit is considered a full participant in the community,” Danes said.
While some cohousing communities are for older adults only, Rachel Carson EcoVillage is intended to be multigenerational. Buyers so far range in age from 20 to 70, but Danes said they want to find more younger residents.
The Sisters of Divine Providence donated the land where the village is being built. The houses, in groups of two or three, are located in two clusters on the property where trees were found to be in distress or dying, so the healthy woodland is preserved. Invasive plants have been removed.
While there is a road through the village for emergency access and deliveries, residents will not use it on a regular basis. Vehicles will be kept away from the homes in a parking lot, with residents walking to and from their homes through the woods.
Instead of large detention areas for stormwater control, rain gardens — depressions in the earth with native plants — throughout the site will capture water where it lands.
The development is legally a condominium, with a $350 monthly fee. But it will operate as a sociocracy, using consent-based decision-making.
Also making the village different is that there will be a group of “active listeners” to help residents resolve conflicts.
Danes said they are hopeful the Rachel Carson EcoVillage will serve as an example that a cohousing community can be built, be successful and lead to more.
Strasser is eager to get into her home early next year and out of the apartment she has been sharing with her two dogs in McCandless.
Asked what about the village appealed to her, she said she has heard of seniors who go downhill quickly when they are lonely and alone.
“I’m a child of the ’60s,” she said. “I wasn’t looking for a commune. I wasn’t really looking for a condo. I was looking for a community. People do better in a community.”
With no children and having never married, Strasser said it was time for her to find a community.
“There’s something to be said for community,” she said. “I’m perfectly happy to be alone, but I don’t want to be lonely. There’s a difference between the two.”
Brian C. Rittmeyer, a Pittsburgh native and graduate of Penn State University's Schreyer Honors College, has been with the Trib since December 2000. He can be reached at brittmeyer@triblive.com.
Remove the ads from your TribLIVE reading experience but still support the journalists who create the content with TribLIVE Ad-Free.

 
 
 
 
 
 
 
